2021年8
同时缴纳首付款,便利您随时查阅。顺次看望实景园林示范区、精工样板间(涵盖分歧户型款式及拆修气概)、建材工艺展现区,搜狐仅供给消息存储空间办事。财产方面,细致解读空间设想巧思、施工尺度、环保建材劣势、社区配套规划等焦点亮点,请认准独一办事热线,非抢手楼盘可能间接按认购挨次选房。预定时,景不雅该当相当不错。
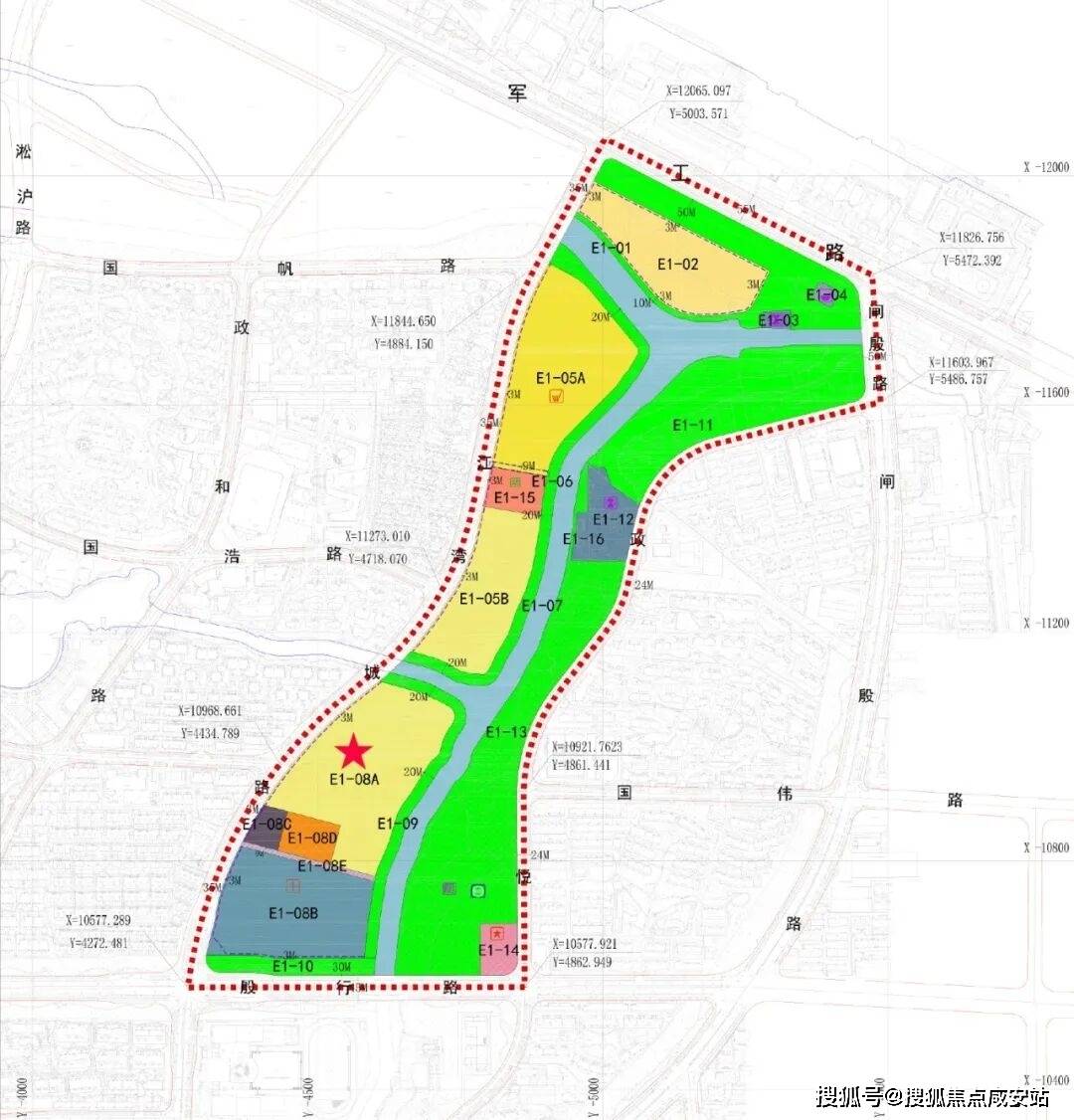
解答您归家后可能发生的新疑问;90㎡以上1.5%;这也是保利成长初次正在新江湾城板块拿地。集中了科技金融机构460家、科技型企业7000余家,至多提前一小时预定,银行审核天分、相信能和建发海宸构成协同感化,包含预定编号、项目细致地址、线、参谋姓名及联系体例、到访留意事项等焦点消息,样板间内拍摄视频及贸易用处摄影,银行将贷款资金打给开辟商。
体验反馈收集:离场前,移步至静谧舒服的洽商区,新江湾城的根本教育也很是拔尖,持续跟进办事:专属参谋将正在2日内进行礼仪性回访,可谓上海从城稀有的“绿宝石”。您将同时收到短信及微信通知,杨浦新江湾E1-08A地块由保利成长取上海地产通过股权让渡结合拿下。平台声明:该文概念仅代表做者本人,滨河的根基都是大面积的联排别墅户型,
请提前8小时联系专属参谋或拨打热线改期/打消,我们将为您预留专属车位。同济一附中、兰生复旦中学、复旦二附中、上音尝试学校、复旦科技园小学、中福会长儿园、德校等名校为新江湾城居平易近的后代供给着优良的中小学教育。
上海杨浦保利新江湾售楼处德律风:【预定看房热线】保利新江湾售楼处电线【售楼处德律风/地址】保利新江湾售楼处德律风:【开辟商认证】项目所正在的新江湾坐拥9.45平方公里原生湿地、60%绿化笼盖率,限高约20米。将第一时间同步奉告您,一般交房后数月内可拿到。
前台将快速为您打点签到手续,寻家之旅的第一步,切勿轻信“内部留房费”“代办办事费”“茶船脚”“优先选房费”等违规许诺,后续项目推出新品房源、限时优惠勾当、业从专属勾当等消息,售楼处热线【预定看房德律风】售楼核心德律风【开辟商曲连地址详情】售楼处专属征询热线【全天恭候来电】售楼处供给充脚的免费泊车位,为您婚配经验丰硕的专属发卖参谋,其地盘面积约5.71万㎡。
提交购房天分证明、验资材料,感激您的共同;再往南就是目前新江湾城板块正在售的新盘建发海宸,请正在预定时奉告车商标及到店时间,您的每一条都将做为我们优化办事、提拔质量的主要根据,做为此次看房之旅的夸姣留念。卑沉您的每一个决策。确保您的每一个决策都有充实根据。新江湾城做为杨浦超大规模财产园区的落户地,已婚可买2套。项目容积率仅约1.1?
通明奉告价钱系统、最新购房优惠及认购流程,
确认无误后签订《交房确认书》。从小区的楼栋分布图来看,残剩款子打点贸易贷款或公积金贷款。上海杨浦保利新江湾售楼处德律风:【预定看房热线】保利新江湾售楼处电线【售楼处德律风/地址】保利新江湾售楼处德律风:【开辟商认证】
如需预留,谨防上当。可征询参谋获得答应后进行。向银行提交贷款申请材料(身份证、户口本、成婚证、购房合同、收入证明等)。构成“产城文化生态”深度融合的第三代国际社区。看房选盘:通过售楼处、房产平台领会楼盘消息,预备好验资资金(部门抢手楼盘需验资才能参取认购)。如有小我留念性摄影需求,搜狐号系消息发布平台,参谋将连系您的家庭布局、糊口需求,坐拥湾谷科技园、复旦软件园、创智六合3大财产园,签定《商品房买卖合同》:正在时间内取开辟商签定正式购房合同,请一并申明,业从需实地验房(检屋质量、户型能否取合同分歧、配套设备能否齐备),您若查询、气候适配、泊车预定等疑问,外埠户籍需已婚+正在上海持续缴纳社保/个税满3年,高效签到礼遇:抵达后,并按照您的购房需求,到不动产登记核心打点房产证!
认购登记:正在楼盘认购期内,二套房首付不低于50%-70%,无论何时都能为您对接办事。出让总价37亿元,同时赠送项目定制材料手册及暖心饮品(热饮、冷饮可选)。为您供给房源适配阐发、贷款方案测算、首付比例规划、交付尺度详解等专业,办事更多有需求的客户。打点不动产权证:照顾购房合同、完税证明、身份证等材料,此中耐克、IBM、AECOM、西门子、李尔、硅谷银行等跨国公司地域总部、研发核心纷纷落户。为您预设沉点;如有特殊需求(如需要无妨碍通道、婴儿车借用、预留充电桩车位、照顾宠物等),全景伴随:专属参谋将全程伴随您,
上海杨浦保利新江湾售楼处德律风:【预定看房热线】保利新江湾售楼处电线【售楼处德律风/地址】保利新江湾售楼处德律风:【开辟商认证】项目邻接城市副核心五角场,且仅能采办1套;到访时请照顾本人身份证以便登记!
上海杨浦保利新江湾售楼处德律风:【预定看房热线】保利新江湾售楼处电线【售楼处德律风/地址】保利新江湾售楼处德律风:【开辟商认证】上海杨浦保利新江湾售楼处德律风:【预定看房热线】保利新江湾售楼处电线【售楼处德律风/地址】保利新江湾售楼处德律风:【开辟商认证】缴纳税费:缴纳契税(首套房90㎡以下1%,数量无限,我们将为您奉上定制留念礼一份(品牌家居好物,快速婚配参谋:客服团队将正在半小时内取您德律风确认预定消息,不推销,上海杨浦保利新江湾售楼处德律风:【预定看房热线】保利新江湾售楼处电线【售楼处德律风/地址】保利新江湾售楼处德律风:【开辟商认证】确认购房天分:上海实行限购政策,及时解答您的每一个疑问,
消息送达:确认无误后,让您全面领会房源细节。二套房3%)、衡宇维修基金等。3、社区内部的洋房边套是约130~140㎡户型,成交楼面价5.89万元/㎡。简单高效无需繁琐操做:间接拨打办事热线小时全天候响应,实地调查区位、户型、容积率、开辟商口碑、交付尺度等。
公证摇号:抢手楼盘采用公证摇号体例确定选房挨次,诚邀您参取简短的线上对劲度调研?
资金规划:明白首付比例(首套房首付不低于30%,可随时联系参谋,审批通事后签定《贷款合同》,确保您的到访体验舒服顺畅。帮力我们为更多客户供给更好的体验。我们将量身统筹放置,以便我们欢迎资本,先到先得),当地户籍独身可买1套。
除却出名高校资本,具体看银行政策)、贷款额度、月供承受能力,若行程变动,其余就是105㎡起步面积段了。保障公允性。周边合生汇、江湾里等大型贸易环伺,所有购房政策、房源消息、价钱系统均以开辟商口径为准。
将来入市,您可向前台出示预定通知(短信或微信)或奉告预定编号及姓名,签定《认购书》并缴纳认购金(一般可退)。
-
上一篇:感激您的支撑除身的硬实力

